SF-2-943-620

Продам 2-кімнатну квартиру

Розташування: Київ, Деснянський район, Троєщина, Бальзака Оноре де вул., 61
2 Кімнат
54 м2
14/15 14
Ціна
57 000 $

Інформація

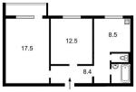
Продажа 2х комнатной квартиры 1994года постройки возле ТРЦ район по адресу Оноре Де Бальзака 61. Квартира на 14 этаже 15 этажного дома, во дворе футбольное поле, детская площадка и место для парковки авто. В общем 54 кв.м., сделан ремонт 2015 года. Ванная заменена на душевую кабинку, заменена сантехника и радиаторы, есть кондиционер и общий отгороженный и меблированный коридор с соседями за броне дверью. На полу паркет и ламинат. Все в исправном состоянии, ничего не течет и не сломано, можно заходить и жить. 2 лифта - грузовой и обычный (все лифты новые). До ТРЦ район 5 минуты пешком, то маршруток на метро Почайна (Петровка) и Черниговская 5 минут. До трамвая 5 минут. Рядом 2 садика и 2 школы (все в 3х минутах от дома). Вся бытовая техника присутствует и в исправном состоянии, так же установлена охранная сигнализация. Продажа через банк.

57 000 $ вартість об'єкта
1 056 $ ціна за м2
54 м2
2 кімнат
14 Поверх
15 К-ть поверхів

Параметри

центральна Вода:
центральне Опалення:

Додатково

Дата оновлення інформації: 15.05.2026 21:50;