RC-190-996

Здам торгівельне приміщення

Розташування: Київ, Політехнічний інститут, Шевченківський район, КПІ, Берестейский пр-т, 18
277 м2
1/9 поверх
Ціна
220 000 ₴
Додаткові платежі:
плата по лічильниках

Інформація

Здам фасадне приміщення по пр. Берестейський (Перемоги), район КПІ.
Під Магазин/Автосалон(є можливість заїзду в приміщення автомобілями), ін.

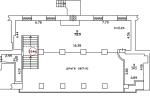
- Великі вітрини – 16 метрів
- фасадний вхід + вихід у двір
- загальна площа приміщення – 277 м2
– Усі комунікації, опалення відсутнє.
- у приміщенні зроблено ремонт.
Сусіди: Аврора, АТБ, ресторан Паштет, магазин розливного пива.
Також багато новобудов, у тому числі ЖК Манхеттен.

Орендна ставка – 220 000грн/міс + комунальні
Комісія Агентства Нерухомості – 50%

Інфраструктура

Громадський транспорт: метро - Політехнічний інститут (10 хв. пішки);
220 000 ₴ вартість об'єкта
794 ₴ ціна за м2
277 м2
9 К-ть поверхів

Параметри

центральна Вода:
автономне Опалення:

Додатково

Зона: житлова;
Дата оновлення інформації: 24.10.2025 15:38;