RC-212-076

Сдам объект сервиса

Местоположение: Киев, Теремки, Голосеевский район, Теремки-1, Глушкова Академика пр-т, 31А
3 Комнат
78 м2
2/2 этаж
Цена
45 240 ₴
Дополнительные платежи:
плата по счетчикам

Информация

Здам нежитлове приміщення
Теремки – 1, вул. Глушкова, поряд із метро.
Під ШколуКлініку/Інтернет магазин/Офіс/Магазин/Салон/Студію/Майстерню, ін.

*! - Здаємо порожнє - БЕЗ МЕБЛІВ!

- Фасадний вхід
- 2 поверх
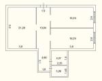
- Загальна площа приміщення - 77 м2 - 3 кабінети: 21.28м2; 16,24 м2; 16.24м2; санвузол; 4.27м2- електролічильна. (див план)
- Автономне електроопалення.
- кондиціонери, вентиляція. Сигналізація.
– Є місце під рекламу.

Орендна ставка – 580грн/м2 + комунальні платежі
Комісія Агентства Нерухомості – 50%

Инфраструктура

Общественный транспорт: метро - Теремки (2 мин. пешком);
45 240 ₴ стоимость объекта
580 ₴ цена за м2
78 м2
3 Помещений
2 Этажность

Дополнительная информация

Зона: жилая;
Дата обновления информации: 23.10.2025 23:23;