RC-207-744

Сдам объект сервиса

Местоположение: Киев, Демеевская, Голосеевский район, Пирогов, Лысогорский пер., 20, корп. 2
70 м2
1/27 этаж
Цена
20 000 ₴
Дополнительные платежи:
плата по счетчикам

Информация

Сдам нежилое помещение в ЖК "Оранж Сити" (Orange City), Голосеевский р-н, Лысогорский переулок.
Дом имеет 3 подъезда, 27 этажей, 675 квартир.
Дом введен в эксплуатацию в 2021 году, люди живут.

– Нежилой фонд.
- фасад, с обратной стороны подъездов
– Отдельный вход
– 1-й этаж.
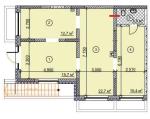
- Общая площадь помещения – 70м2,
- высота потолков 3,5м.
- Выполненная базовая отделка:
в зале уложена напольная плитка и разветвлено электричество,
в с/у плитка на полу и на стенах, 1 унитаз, 1 умывальник, есть выход для установки бойлера, а также отведено водоснабжение и канализацию в центральный зал помещения.
- мощность электроэнергии - 16,5 кВт (3 фазы Х 25 ампер)

Арендная ставка – 20000 грн./мес. на первые 2 мес. скидка на устройство 50%. + Коммунальные платежи.
Комиссия Агентства Недвижимости – 50%

Инфраструктура

Общественный транспорт: метро - Демеевская (20 мин. на транспорте);
20 000 ₴ стоимость объекта
286 ₴ цена за м2
70 м2
27 Этажность

Параметры

центральная Вода:
16 Мощность, кВт:

Дополнительная информация

Зона: жилая;
Дата обновления информации: 27.10.2025 17:19;