SF-3-250-708

Продам 1-комнатную квартиру

Местоположение: Киев, Святошинский район, Новобеличи, Булаховского Академика ул., 28Б
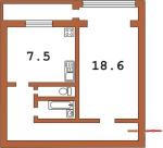
1 Комнат
34 м2
9/9 этаж
Цена
41 000 $
Комиссия:
3%

Информация

Біличі. Однокімнатна вулиця Академіка Булаховського, 28б. Косметичний ремонт. Продаж з меблями та технікою. Склопакети. Пральна машина. Лічильники на воду, газ, ел.енегію. Санвузол раздільний. Металеві вхідні двері. Тамбур на три квартири. Чисте парадне, домофон. Будинок у доглянутому дворі. Розвинена інфраструктура. Дві школи и садки, Сільпо, sport life, Фора, ринок, ліс. Зручна транспотрна розв'язка. Метро Академмістечко 20-25 хвилин пішки. Транспортом п'ять хвилин.

41 000 $ стоимость объекта
1 206 $ цена за м2
34 м2
1 комнат
9 Этаж
9 Этажность

Параметры

центральная Вода:
есть Газ:
центральное Отопление:
холодная вода, горячая вода Счетчики:

Дополнительная информация

Дата обновления информации: 21.01.2026 21:26;