Персональний сайт рієлтора

Надія

Завжди рада допомогти, звертайтесь!
+380 (63) 159-95-73
+380 (98) 871-21-61
Надіслати оголошення
RC-222-102

Здам офісне приміщення

Розташування: Київ, Контрактова площа, Подільський район, Поділ, Хорива вул., 34
4 Кімнат
62 м2
1/4 поверх
Ціна
45 000 ₴
Додаткові платежі:
по лічильниках і опалення

Інформація

з 1 квітня
Здам мебльований офіс.
Поділ, вул. Хорива, ст.м. Контрактова площа – 500 метрів, 3-5 хв пішки.
Ідеально під офіс Нотаріуса/Юриста/Психолога/Навчальні курси, ін.

- Нежитловий фонд
- 1-й поверх
- Вхід через парадне
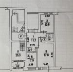
- Загальна площа - 61,8м2: ресепшен; 4 кабінети: 17,6 м2; 10.8м2; 7.9м2; 9м2(тепла підлога); міні-кухня-2,6 м; санвузол (бойлер).
- Якісний ремонт
- Офісні МЕБЛІ залишаються у всіх кімнатах, крім однієї.
- Кондиціонер.
- Охоронна та пожежна сигналізація.
- На вікнах решітки
- Централізоване опалення
- Вивод для зовнішньої реклами.
- Парковка у дворі (стихійна)

Орендна ставка – 45 000 грн./міс + комунальні послуги.
Договір з ФОП, безготівковий розрахунок
Комісія Агентства Нерухомості – 50%

Інфраструктура

Громадський транспорт: метро - Контрактова площа (5 хв. пішки);
45 000 ₴ вартість об'єкта
728 ₴ ціна за м2
61.80 м2
4 Приміщень
4 К-ть поверхів

Параметри

центральне Опалення:
2.75 Висота стелі:

Додатково

з 1 квітня

Зона: житлова;
Дата оновлення інформації: 05.03.2026 21:31;