Персональний сайт рієлтора

Надія

Завжди рада допомогти, звертайтесь!
+380 (63) 159-95-73
+380 (98) 871-21-61
Надіслати оголошення
RC-204-947

Здам об’єкт сервісу

Розташування: Київ, Осокорки, Дарницький район, Позняки, Дніпровська наб., 17В
3 Кімнат
224 м2
1/28 поверх
Ціна
4 473 $
Додаткові платежі:
плата по лічильниках

Інформація

Здам нежитлове приміщення Під Клініку/СпортКомплекс/ШоуРум/Магазин, ін.
Позняки, Дніпровська набережна, ЖК "Берег Дніпра".
Великий авто та піший трафік. Поруч великий ЖК "Грейт"

- Нежитловий фонд
- 1 поверх 28 поверхового житлового будинку
- Фасадний окремий вхід + другий у двір.
- Вітринні вікна
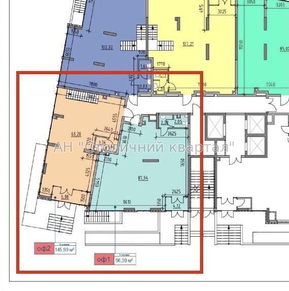
- Загальна площа приміщення – 223,68 м2.
- Два рівні:
1 поверх: приміщення зі своїм входом - 97,94 м2 + друге приміщення зі своїм входом - 68,2 м2.
Підвал – 67,53м2
- Вільне планування
- без оздоблювальних робіт
– На останніх трьох фото план-проект реабілітаційного центру
Є всі міські комунікації

Орендна ставка - 20 $ / м2 + комунальні платежі
Комісія Агентства Нерухомості – 50%

Інфраструктура

Громадський транспорт: метро - Осокорки (30 хв. пішки, 15 хв. на транспорті);
4 473 $ вартість об'єкта
20 $ ціна за м2
223.67 м2
3 Приміщень
28 К-ть поверхів

Параметри

2.7 Висота стелі:

Додатково

Зона: житлова;
Дата оновлення інформації: 27.02.2026 15:07;