Персональний сайт рієлтора

Юрій

+380 (50) 477-43-73
+380 (68) 931-23-77
Надіслати оголошення
SF-2-812-781

Продам 2-кімнатну квартиру

Розташування: Київ, Вокзальна, Солом'янський район, Солом'янка, Патріарха Мстислава Скрипника вул., 40А
2 Кімнат
62 м2
3/16 поверх
Ціна
72 000 $

Інформація

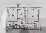
Солом'янка. Двокімнатна по вулиці патріарха Мстислава Скрипника, 40а. Косметичний ремонт. Пластикові вікна, нові батареї. Продаж з меблями та технікою. Дві окремі кімнати, просторий хол. Роздільний санвузол. Лоджия засклена. В квартирі тепло. Вікна на південний захід. Металеві двері. Чисте парадне, два ліфти, домофон. Будинок цегла індивідуальний проект 1995 року. Доглянутий двір. Розвинена інфраструктура. Зручна транспортна розв'язка. З/Д вокзал, метро Вокзальна 10-15 хвилин пішки.

Інфраструктура

Громадський транспорт: метро - Вокзальна (15 хв. пішки);
72 000 $ вартість об'єкта
1 161 $ ціна за м2
62 м2
2 кімнат
3 Поверх
16 К-ть поверхів

Параметри

центральна Вода:
центральне Опалення:

Додатково

Дата оновлення інформації: 31.10.2025 15:00;