Це оголошення уже закрито

SP-027-809
Без комісії

Продам ділянку сільгосп призначення

Розташування: Горбовичі, Київська область, Бучанський район, Садова вул.
43 сот.
Ціна
65 000 $
Комісія:
0%

Інформація

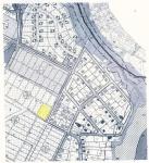
Продаж земельної ділянки. До Києва (м. Житомирська) 22км.
Адреса: с. Горбовичі (Шпитьки), вул. Садова.
Кадастровий номер: 3222488200:06:002:0388
Площа: 0.4288 га
Цільове призначення : для ведення особистого підсобного господарства, садівництва (можна перевести під будівництво).

65 000 $ вартість об'єкта
1 512 $ ціна за сот.2
43 сот.

Параметри

асфальт Під’їздна дорога:

Додатково

Дата оновлення інформації: 31.08.2025 09:08;