SF-3-273-803

Продам 3-кімнатну квартиру, ЖК TRIIINITY

Розташування: Київ, Палац «Україна», Печерський район, Печерськ, Василя Тютюнника вул., 39/2
3 Кімнат
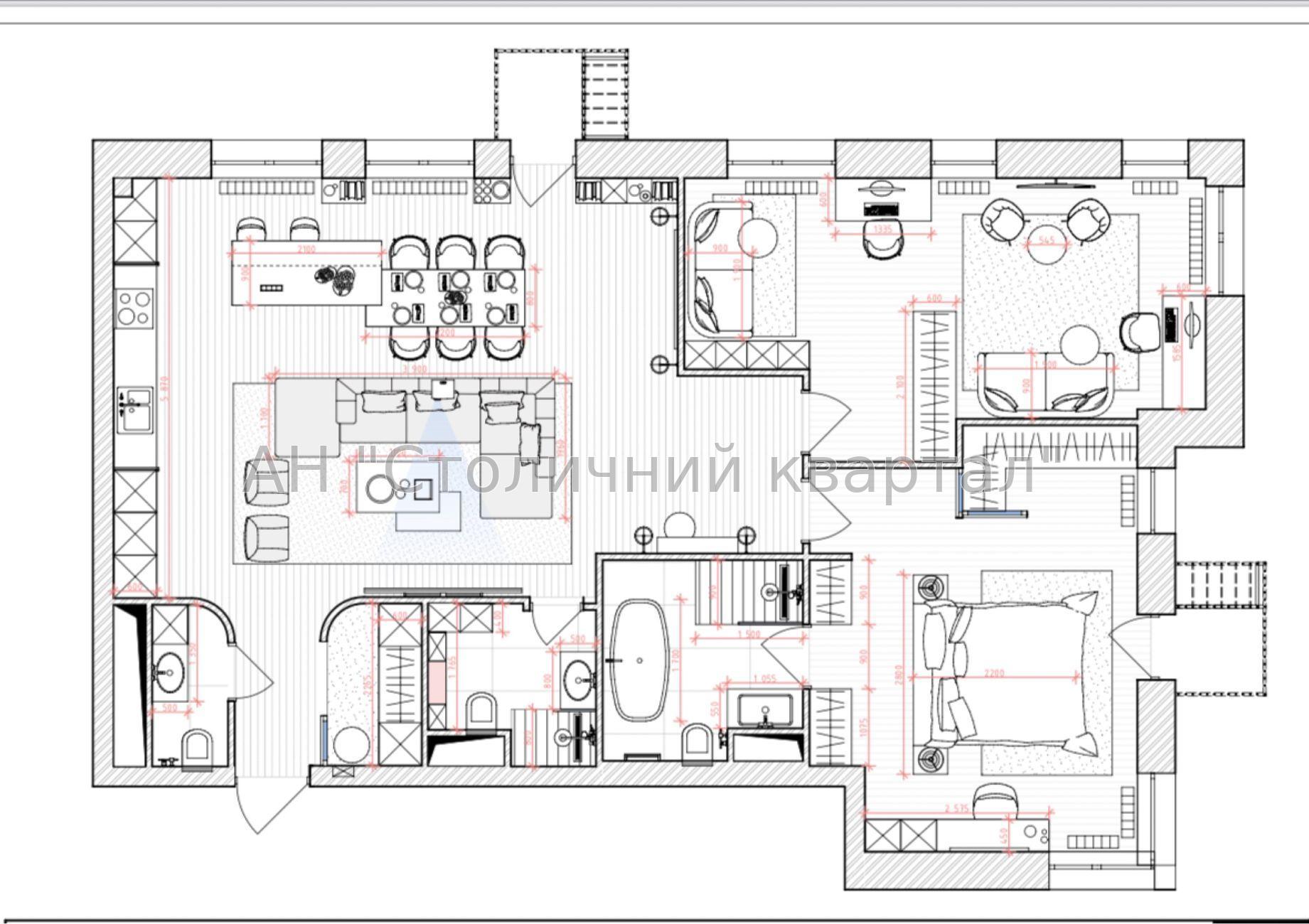
120 м2
15/23 поверх
Ціна
368 000 $
Комісія:
3%

Інформація

ЖК TRIIINITY . 1 черга, будинок введено в експлуатацію, документи на руках. 3 кімната квартира загальною площею 120м2. Вікна квартири виходять у двір. Є готовий дизайн-проект. Перегляд узгоджуємо за 1 день Податки 50/50

Інфраструктура

Громадський транспорт: метро - Палац «Україна» (7 хв. пішки);
368 000 $ вартість об'єкта
3 067 $ ціна за м2
120 м2
3 кімнат
15 Поверх
23 К-ть поверхів

Параметри

центральна Вода:
центральне Опалення:
холодна вода, гаряча вода, опалення Лічильники:

Додатково

Дата оновлення інформації: 04.02.2026 17:22;