Інформація в цьому оголошенні застаріла

SF-3-181-062

Продам 3-кімнатну квартиру

Розташування: Київ, Деснянський район, Троєщина, Олександри Екстер вул., 5
3 Кімнат
96 м2
21/22 21
Ціна
100 000 $

Інформація

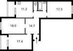
Продаж 3х кімнатної квартири, АППС люкс 2007 року. Квартира розташована на 21 поверсі/22 пов. будинку. В будинку діє ОСББ. В підїзді є консьерж, три ліфти (два пасажирські і один вантажний). На поверсі 5 квартир, спільні двері з сусідами, що замикаються на ключ. Загальна площа - 96,2 кв.м., житлова - 52,9 кв.м. вікна квартири виходять на сторону церкви і в двір будинку. Просторна кухня обєднана з балконом (приблизно 16м). Підлога кухні з електричним підігрівом ( регуляція температури). Кухня умебльована вбудованими меблями з фасадами з якісного натурального дерева. Вбудована техніка: варочна панель, духовка, витяжка, посудомийна машина, мікрохвильовка. Двухдверний холодильник, телевізор, система очищення води (осмос). великий обідній стіл +6 стільців, розкладний диван з шафою для зберігання речей, кондиціонер. Широке підвіконня в вигдяді столешні служить як барна стійка+ 2 барні стули. Чудовий вид з вікна на церкву. Великий спільний санвузол в якому розташована ванна, біде і бойлер на 100л. В ванній кімнаті електричний підігрів підлоги з можливістю програмування температури, стеля натяжна. В квартирі два коридори: маленький в якому безпосередньо знаходиться вхід в картиру ( якісні вхідні двері) і вбудована шафа для зберігання верхньої одежі. З маленького коридору вхід в просторий світлий холл (12 метрів). Три великі кімнати. В першій кімнаті вікна виходять на сторону церкви. З кімнати вихід на велику утеплену лоджію. В кімнаті вбудована шафа на всю стіну, двуспальне ліжко (160/200). Вікна другої кімнати виходять на церкву. В кімнаті дитяче ліжко, шафа , спортивна стінка. Вікна третьої кімнати виходять у двір будинку. В кімнаті вбудована шафа, ліжко 140/200, стіл письмовий, кондиціонер. В квариті була виконана стяжка всієі підлоги помешкання. Міжкімнатні двері з дерева. На поверсі є особиста комора. Поряд с будинком парковка. Добре розвинута інфраструктура. В пішій доступності є все для комфортного проживання: супермаркет Novus, ринок, школи, гімназія.

100 000 $ вартість об'єкта
1 040 $ ціна за м2
96.20 м2
3 кімнат
21 Поверх
22 К-ть поверхів

Параметри

центральна Вода:
центральне Опалення:
панель Матеріал стін:

Додатково

Дата оновлення інформації: 15.11.2025 18:23;