Інформація в цьому оголошенні застаріла

SF-2-678-541

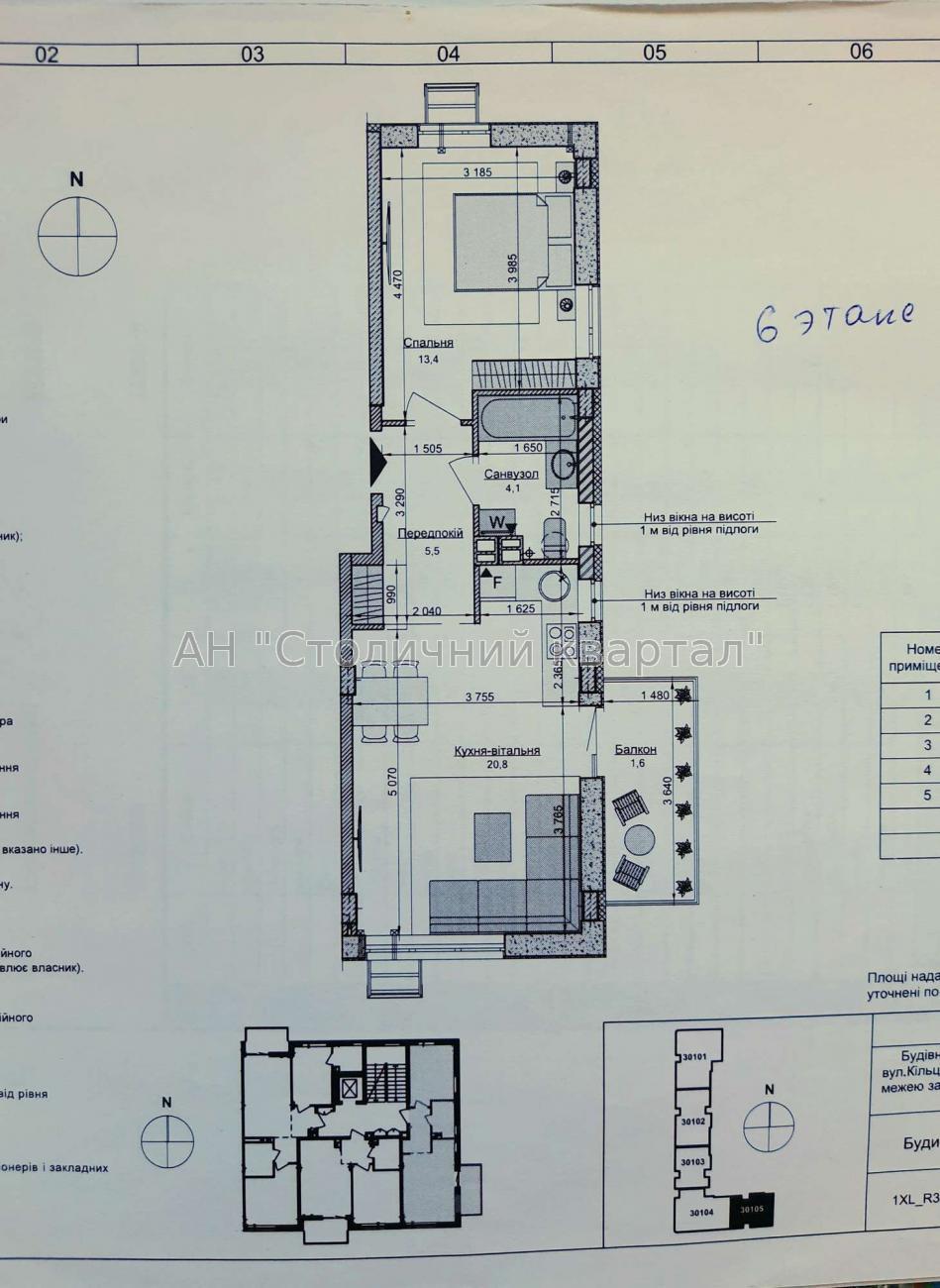
Продам 1-кімнатну квартиру, ЖК Вул. Теремківська, 3

Розташування: Київ, Теремки, Голосіївський район, Теремки-1, Теремківська вул., 4
1 Кімнат
46 м2
6/24 поверх
Ціна
103 000 $

Інформація

Продається шикарна видова квартира з панорамними вікнами в ЖК “Республіка” за адресою: Братів Шеметів 9. Планування:
- велика кухня-студія 21 м2, яку зручно зонувати.
- великий балкон 3.6*1.5, де можна поставити крісла, стіл та пити каву.
- супер-світла: в спальні 2 вікна, в ванній кімнаті вікно, над робочою поверхнею на кухні вікно, велике вікно в зоні вітальні. Подивіться на план та уявіть, скільки там світла.
Планування унікальне і незвичайне, дуже вдале та комфортне.
До ТРЦ “Республіка” 5 хвилин, на території магазини, кафе, в будинку планують відкрити коворкінг.
Стан - від будівельників, тому є можливість зробити кухню-студію саме під вас.
Будинок введено в експлуатацію, українська цегла, висота стелі 2.8 метра. В квартирі 5 вікон. Планування кімнат роздільне. Немає гарячої води. Опалення центральне. Суміщений санвузол, туалет/ванна. Є стяжка підлоги. Є балкон не засклений. Вікна металопластикові, нові. Будинок побудований в 2023 році. Зовнішнє утеплення стін. Загальний стан квартири - від будівельників (з обробкою). Поруч є школа, дитсадок, зупинки, супермаркет.

Інфраструктура

Громадський транспорт: метро - Теремки (15 хв. пішки, 5 хв. на транспорті);
103 000 $ вартість об'єкта
2 239 $ ціна за м2
46 м2
1 кімнат
6 Поверх
24 К-ть поверхів

Параметри

центральна Вода:
центральне Опалення:

Додатково

У квартири 1 власник.

Дата оновлення інформації: 02.09.2023 18:13;