RF-3-224-535

Здам 1-кімнатну квартиру, ЖК Парковий

Розташування: Київ, Святошинський район, Борщагівка Микільська, Миколи Руденка бул., 14
1 Кімнат
60 м2
12/23 поверх
Ціна
13 500 ₴
Додаткові платежі:
по лічильниках і опалення
Комісія:
50%

Інформація

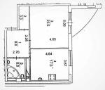
Довгострокова оренда однокімнатної квартири в ЖК "Парковий", бкльвар Миколи Руденка 14 (раніше бульвар Кольцова). Загальна площа 60 кв.м, 12 поверх. Кухня, лоджия, простора кімната - 23.5 кв.м.,гардеробна, суміжний санвузол. В наявності меблі та побктова техніка. Підігрів підлоги. Лічильнткт на воду, електрику, опалення.
Консьєрж, кодовий замок,
Розвинена інфраструктура поруч. Хороша транспортна розв'язка.
Перевага співвітчизникам: одній людині або парі, без шкідливих звичок, без домашніх тварин, без маленьких дітей.

13 500 ₴ вартість об'єкта
225 ₴ ціна за м2
60 м2
1 кімнат
12 Поверх
23 К-ть поверхів

Параметри

центральна Вода:
центральне Опалення:
цегла Матеріал стін:

Додатково

Предпочтение соотечественникам: одному человеку, паре, без вредных привычек , без домашних животных, без маленьких детей. Домашні улюбленці: Ні 🥺

Домашні тварини: Заборонено з тваринами;
Дата оновлення інформації: 15.10.2025 13:06;